
Dieses Objekt ist zur Zeit leider nicht verfügbar.
Ein Zuhause mit Geschichte und Platz zum Durchatmen – für Familien, die Natur, Qualität und Lebensfreude verbinden möchten.
Online erhalten Sie einen ersten Einblick der Immobilie, weitere Informationen und Bilder finden Sie in unserem Exposé, welches Sie nach Anfrage erhalten.
In der begehrten Kastanienallee von Michendorf erwartet Sie dieses charmante Einfamilienhaus aus dem Jahr 1936, das seit den frühen 2000ern renoviert und 2024 umfassend und mit viel Liebe zum Detail modernisiert wurde. Auf einem sonnigen Grundstück von 955 m² und mit 180 m² Wohn-und Nutzfläche bietet dieses Haus ein rundum nachhaltiges und stilvolles Wohnkonzept für anspruchsvolle Käufer.
Highlights auf einen Blick:
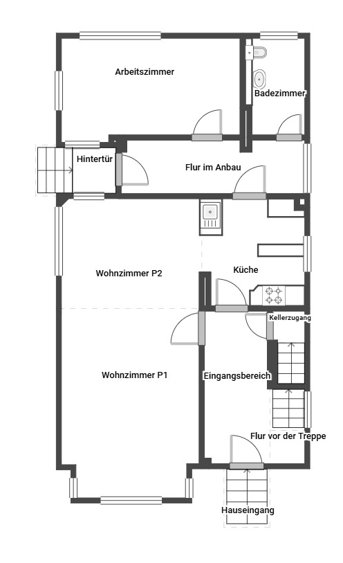
Raumaufteilung: durchdacht & flexibel
Erdgeschoss
Obergeschoss
Keller
Allgemeine Angaben:
Baujahr: 1936, vollständig renoviert, 2024 modernisiert
Wohn-und Nutzfläche: 180 m²
Grundstücksgröße: 955 m²
Zimmer: 4
Schlafzimmer: 3
Badezimmer: 2
Balkon: 1 (Nachmittags- /Abendsonne)
Teilunterkellerung mit Waschküche & Technikraum
Verfügbar ab: 01.08.2025
Technik & Energie:
Sanierungen & Modernisierungen (2000–2024):
Innenausstattung:
Bodenbeläge:
Außenbereich:
Vorhandene Unterlagen:
Einen ersten Eindruck der Immobilie erhalten Sie online. Ausführliche Informationen und weitere Bilder stellen wir Ihnen gerne in unserem Exposé zur Verfügung, das Sie nach Ihrer Anfrage erhalten
Grün, ruhig und bestens angebunden – Wohnen vor den Toren Potsdams
Dieses modernisierte Einfamilienhaus liegt in ruhiger Wohnlage in Michendorf, südlich von Potsdam. Die Umgebung ist geprägt von Natur, gewachsener Nachbarschaft und einer hohen Lebensqualität.
Wälder, Seen und Spazierwege befinden sich in direkter Nähe – gleichzeitig sind Potsdam in ca. 10 Minuten und Berlin in ca. 30 Minuten erreichbar, ob per Bahn oder Auto. Einkaufsmöglichkeiten, Schulen, Kitas und medizinische Versorgung befinden sich in unmittelbarer Umgebung. Der Bahnhof Michendorf ist in rund 15 Gehminuten erreichbar, die Autobahn A10 in wenigen Minuten.
Ein idealer Wohnort für alle, die Ruhe, Natur und eine schnelle Anbindung an die Stadt miteinander verbinden möchten.
Kindergarten 900 m | Grundschule 1,10 km | Gymnasium 2,20 km | Flughafen 48 km | Fernbahnhof 1,38 km | Autobahn 3 km | Zentrum 12 km | Bus 400 m | Einkaufsmöglichkeiten 1,30 km | Gaststätten 1,50 km
Wenn Sie die Immobilien-Karte anzeigen, übertragen Sie Daten an Google Maps (Datenschutzerklärung).
Die dargestellte Position der Immobilie ist nur eine ungefähre Angabe.